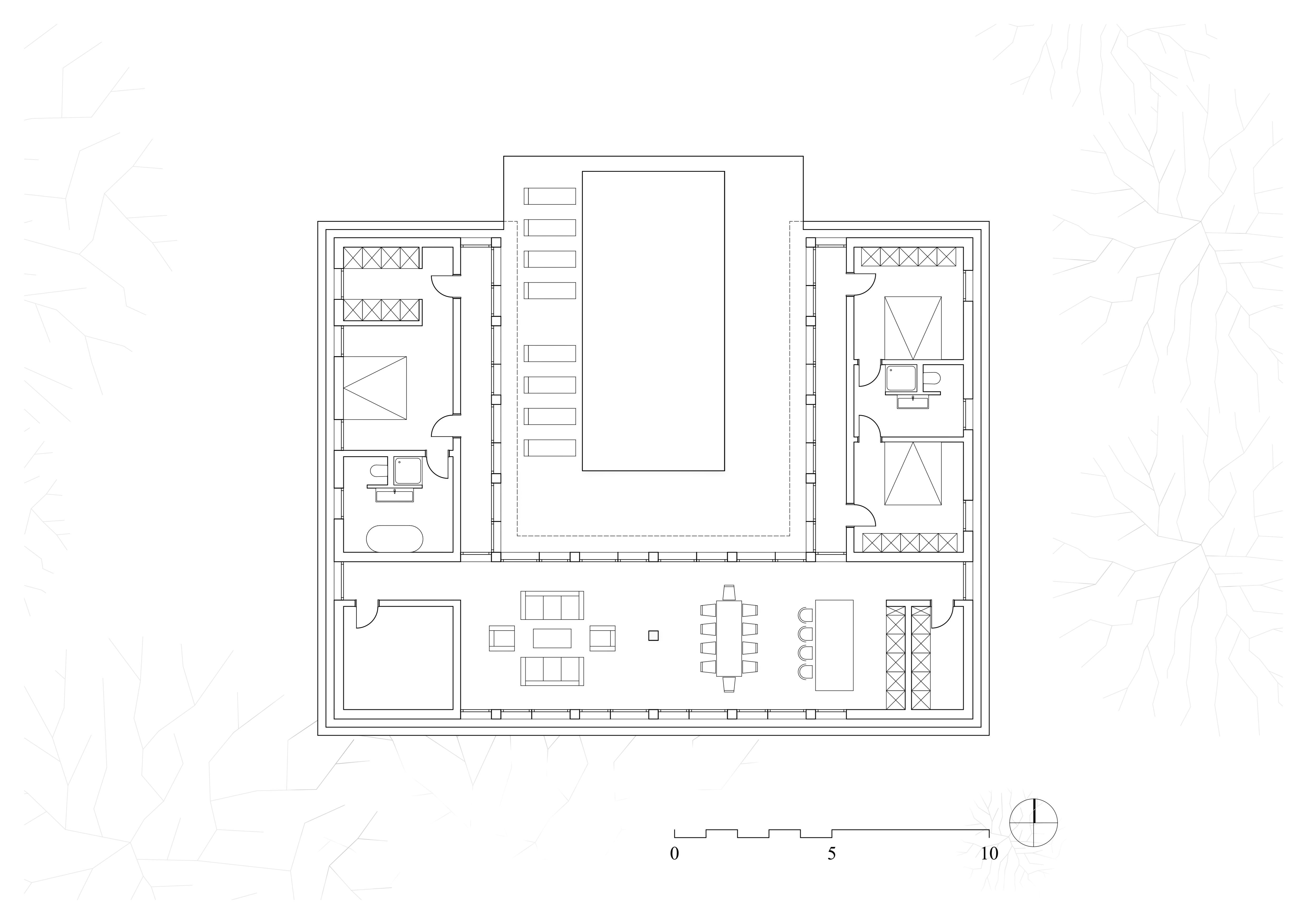
Bungalow: Ferienhaus in Thailand

Kontakt
Ich freue mich auf Ihre Nachricht
Adresse
Stephanienstraße 8, 76133 KarlsruheTelefonnummer
Öffnungszeiten
Mo - Fr 8.00 - 18.00 Uhr

Mo - Fr 8.00 - 18.00 Uhr
Ich stimme zu, dass lutz-architekt-karlsruhe.de Tracking-Technologien von Drittanbietern verwendet, um personenbezogene Daten zu verarbeiten, ein Benutzerprofil zu erstellen und mir interessenbezogene Werbung zu zeigen. Ich kann meine Einwilligung jederzeit mit Wirkung für die Zukunft widerrufen. Für weitere Informationen können Sie hier klicken.